Yoga Corporative House
みどりのこと
コーポラティブハウスの植栽デザイン。
事業の性質地下住戸をつくり容積をフル活用し
プランを構成しているため(そのため安い)
余剰の敷地(いわゆる植栽できる土)は極めて
少ないがそれでも目に付くアプローチのアイストップ
や各階に設けられた壁面登攀用の植栽だなを
活用し緑に囲まれた雰囲気を作り出しました。
南面のよう壁のTOPにはコデマリ、ユキヤナギ
フォレストパンシーを植え込み春と秋に窓辺から
季節を感じていただけるように構成しました
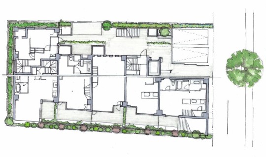
みどりのこと
コーポラティブハウスの植栽デザイン。
事業の性質地下住戸をつくり容積をフル活用し
プランを構成しているため(そのため安い)
余剰の敷地(いわゆる植栽できる土)は極めて
少ないがそれでも目に付くアプローチのアイストップ
や各階に設けられた壁面登攀用の植栽だなを
活用し緑に囲まれた雰囲気を作り出しました。
南面のよう壁のTOPにはコデマリ、ユキヤナギ
フォレストパンシーを植え込み春と秋に窓辺から
季節を感じていただけるように構成しました